Connect Socially

technical drawing.|visualizations.|renders.|CAD to BIM.|

Our projects

Architecture Assistance

We are two architects with a passion for bringing your project to life. We are technical advisors, from the first steps to the executive project.

We work with architects, studios and students alike.

Learn more

Spiral

Render, Sections, Floor plans
Morning Dew
Morning Dew

Thesis Project

Render, Diagrams, Floor plans, Sections
Morning Dew
Morning Dew
Morning Dew
Morning Dew

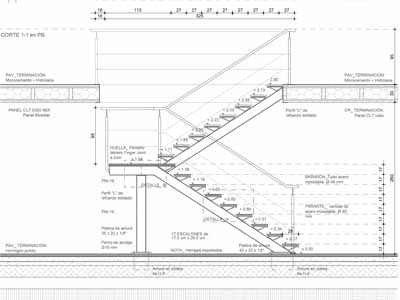
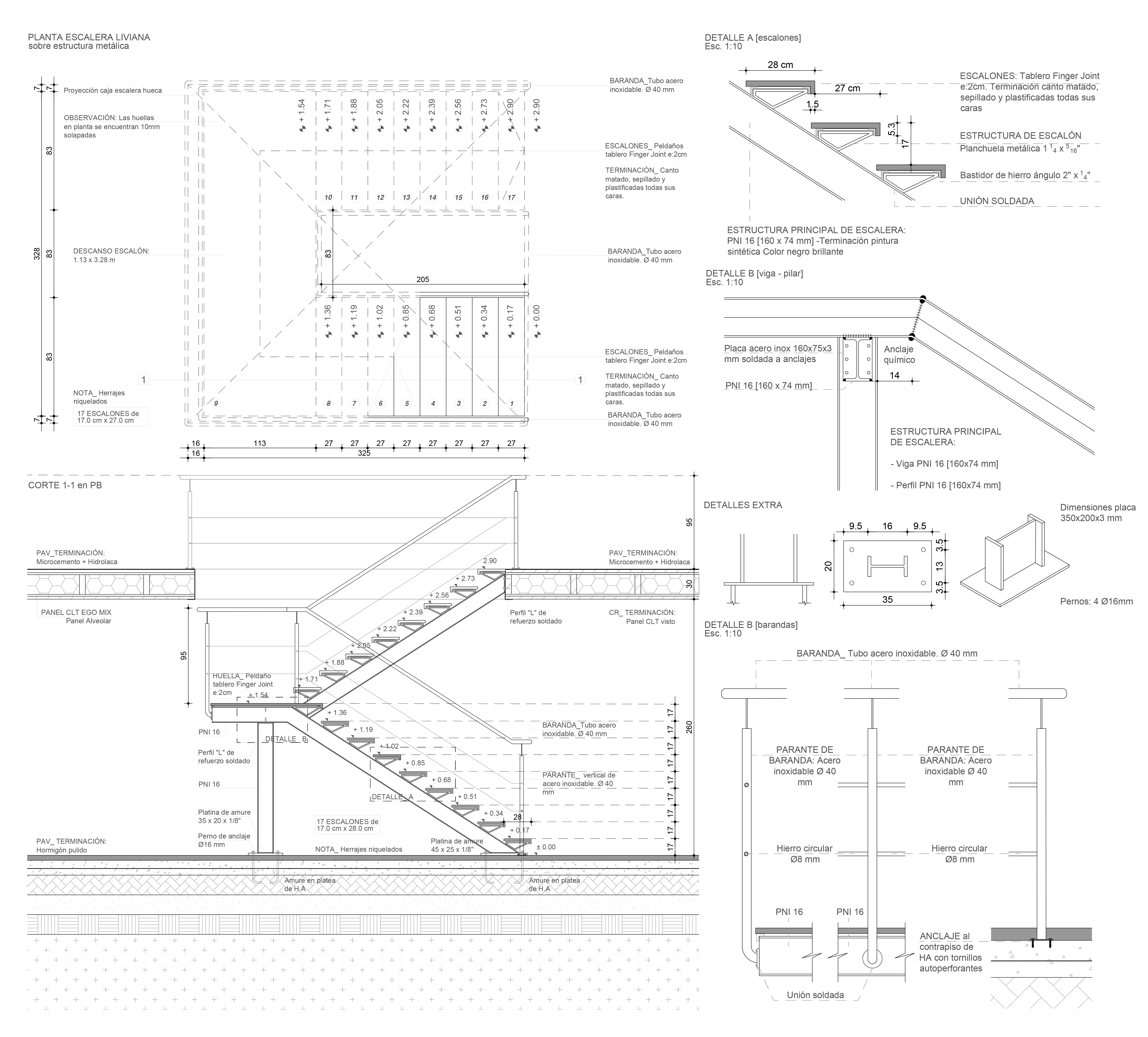
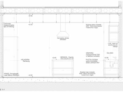
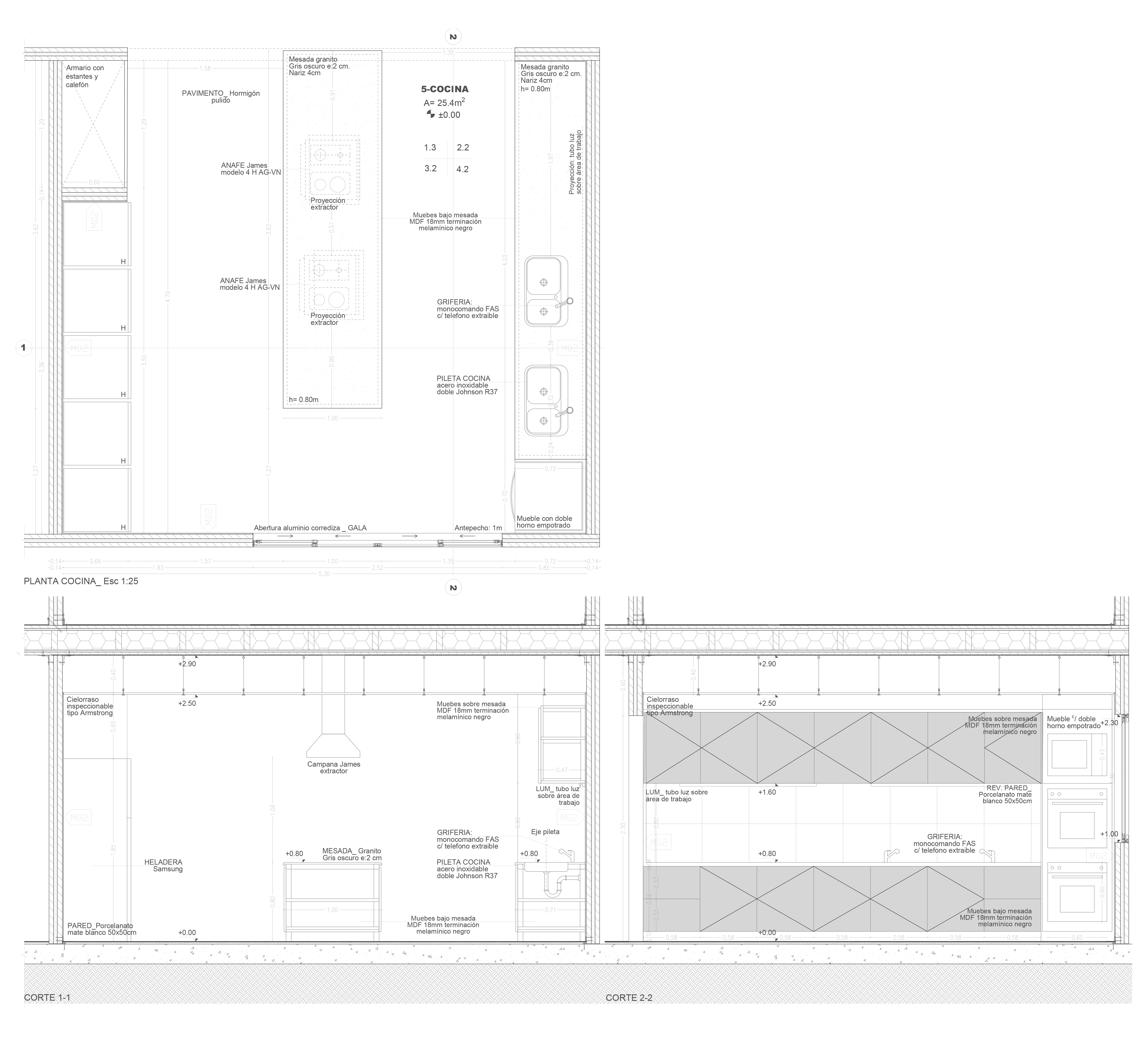
Construction Details - Kitchen, Bathroom, Stairs, Windows

Construction Details
Morning Dew

Construction Diagrams

Diagrams
Morning Dew
Morning Dew

Context Diagrams

Diagrams

We provide assistance on technical drawings, floorplans, sections and construction details. We work both with CAD and BIM, focusing on concept sketches, collages, 3D visualizations and general assistance and advisory on your project presentation.


We will do our best to get back to you in 6-8 working hours.